Stony Lane, Burton, Christchurch, Dorset, BH23 7LD
- Detached Bungalow
- 4
- 2
- 2
- Freehold
Key Features:
- FOUR/FIVE BEDROOMS
- GARAGE
- OFF ROAD PARKING
- GENEROUS ACCOMMODATION
- NO CHAIN
- SOUGHT AFTER VILLAGE
Description:
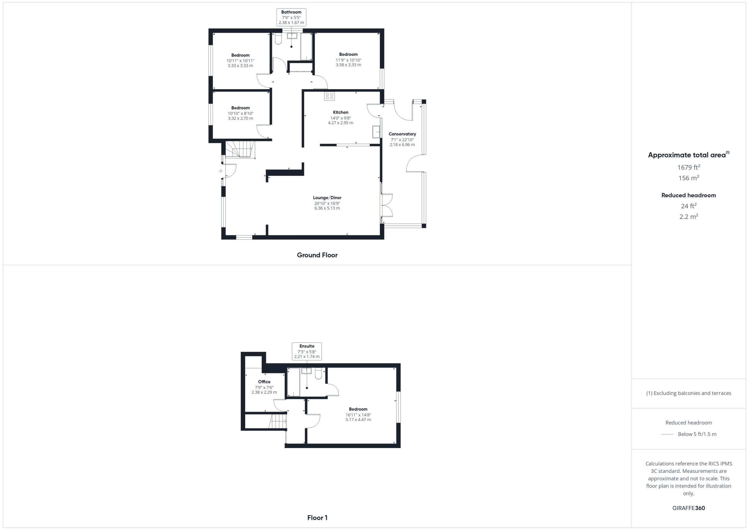
This FOUR/FIVE BEDROOM DETACHED CHALET BUNGALOW is situated in the POPULAR VILLAGE OF BURTON. The property features an IMPRESSIVE OPEN PLAN KITCHEN/LIVING SPACE as well as AMPLE OFF ROAD PARKING and a GARAGE. NO CHAIN.
On entering the property, a welcoming hallway leads into the main living spaces.
To the front, a large open-plan living area provides an inviting space for both relaxation and entertaining, with plenty of natural light and doors opening into a conservatory at the rear that overlooks the garden.
The kitchen is finished to a high standard and is located off the living area. There are a range of base and eye level units with some integral appliances.
Three well-proportioned bedrooms are located on the ground floor. A modern family bathroom serves this level, finished with quality fittings and a clean, neutral design.
The first floor has been designed as a spacious principal suite, featuring a generous double bedroom which has an en-suite shower room.
The other room can be used as a dressing or office.
The property enjoys a generous frontage laid to loose shingle with double gates onto Stony Lane. There are also double gates to the rear of the property from Birch Avenue leading to a block paved driveway and in turn the GARAGE. The rear garden is laid mainly to lawn.
TENURE: FREEHOLD
COUNCIL TAX BAND: E














