Windsor Road, Christchurch, Dorset, BH23 2EE
- Detached Bungalow
- 3
- 2
- 1
- Freehold
Key Features:
- VENDOR SUITED
- DETACHED CHALET
- THREE BEDROOMS
- OFF ROAD PARKING
- TWYNHAM CATCHMENT
- NEW ROOF 2025
Description:
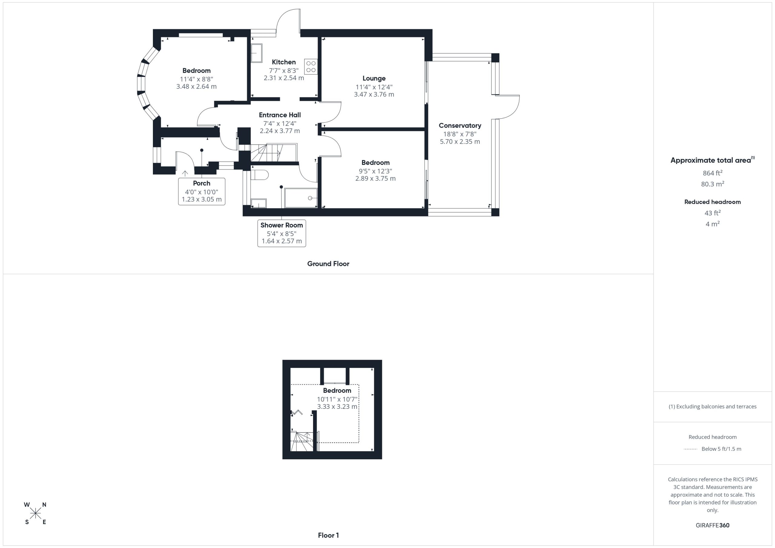
This THREE BEDROOM DETACHED CHALET BUNGALOW is situated in the TWYNHAM SCHOOL CATCHMENT AREA. The property features OFF ROAD PARKING as well as a BRAND NEW ROOF.
The front door leads into a generous porch. A door then leads through to the entrance hall. The lounge is set to the rear of the property a new gas fire and flue as well as a door through to the conservatory. The kitchen features a range of base and eye level units with an integral cooker, hob and extractor fan. There are spaces for further appliances. There are two bedrooms on the ground floor. Stairs from the entrance hall lead to the first floor landing where the third bedroom can be found.
To the front of the property a driveway provides OFF ROAD PARKING. There is a gated access to the left hand side of the property. The rear garden features a pond as well as sections of lawn and patio.
TENURE: FREEHOLD
COUNCIL TAX BAND: C














