Wentworth Avenue, Bournemouth, Dorset, BH5 2EQ
- Detached House
- 5
- 3
- 3
- Freehold
Key Features:
- Spacious family home
- A short stroll to the beach and high street
- No onward chain
- Five bedrooms
- Detached annex
- Character features and high ceilings
Description:
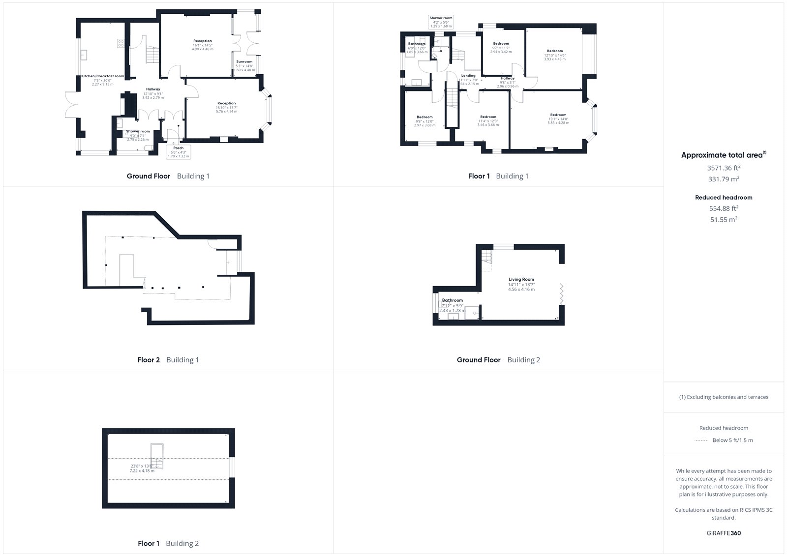
This substantial detached home offers over 3000 square foot of well-presented accommodation, a large loft room and a great landscaped rear garden. Set in a great location and offered for sale chain free, an internal inspection is an absolute must.
Offering a vast amount of space, both inside and out, the property offers five large double bedrooms, two receptions, a full width Kitchen/Breakfast room, ample off-road parking, a lovely private rear garden and a converted garage which could be utilised as separate accommodation.
Upon entering the house via a partly glazed side entrance door a small porch welcomes you, a great space to kick off shoes and hang up coats and jackets. A set of feature original double doors in turn open up onto the large entrance hallway, where doors offer access to the two large reception rooms, full width kitchen/Breakfast room and shower room/WC.
The formal living room is set to the front of the house and offers a large UPVC bay window offering a pleasant aspect over the front garden and plenty of space for a variety of living and dining room furniture.
The second reception is also situated to the front of the property and is flooded with natural light. There is also a small sun room with double doors opening up onto the front garden.
Set to the rear of the house, the full width Kitchen/Breakfast room offers a great space to cook, dine and relax with a range of eye level and base units set above and below the Granite work surfaces with built in appliances, a breakfast bar and a window overlooking the landscaped rear garden.
The breakfast/living area offers space for a small dining table, sofa, a UPVC window to the side aspect, a glazed roof and French doors leading to the rear garden.
The spacious ground floor Wet room offers a wall mounted shower, low level WC, wash hand basin and a UPVC obscured window to the side aspect. A return staircase leads from the entrance hallway to the first floor landing where large windows flood the space with natural light and doors offer access into all rooms.
The first floor offers up to five bedrooms, all being good sized doubles. The bedrooms are served by a modern and spacious family bathroom and adjacent is a small shower room. The impressive loft room is accessed via a door from the first floor landing and is a wonderful additional space as a hobbies room or occasional bedroom.
Externally, the driveway has been block paved offering off road parking for multiple vehicles with the remainder being laid to shingle for further parking.
The rear garden has been well landscaped with a block paved area immediately abutting the rear, a raised decked area adjacent and the remainder laid to lawn with a hot tub area with pergola to the east elevation and a variety of well stocked and mature flower and shrub borders.
The garage has been partially converted to form a small self-contained annexe with Bi-fold doors to the front, a living area, a shower room and a paddle staircase leading to a small sleeping area.
Tenure: Freehold
Council tax band: F


























