Wellesley Avenue, Christchurch, Dorset, BH23 4SX
- Semi-Detached House
- 2
- 1
- 1
- Freehold
Key Features:
- TWO BEDROOMS
- SEMI DETACHED
- CLOSE TO QUAY & BEACH
- OFF ROAD PARKING
- ATTACHED GARAGE
- WELL PRESENTED
Description:
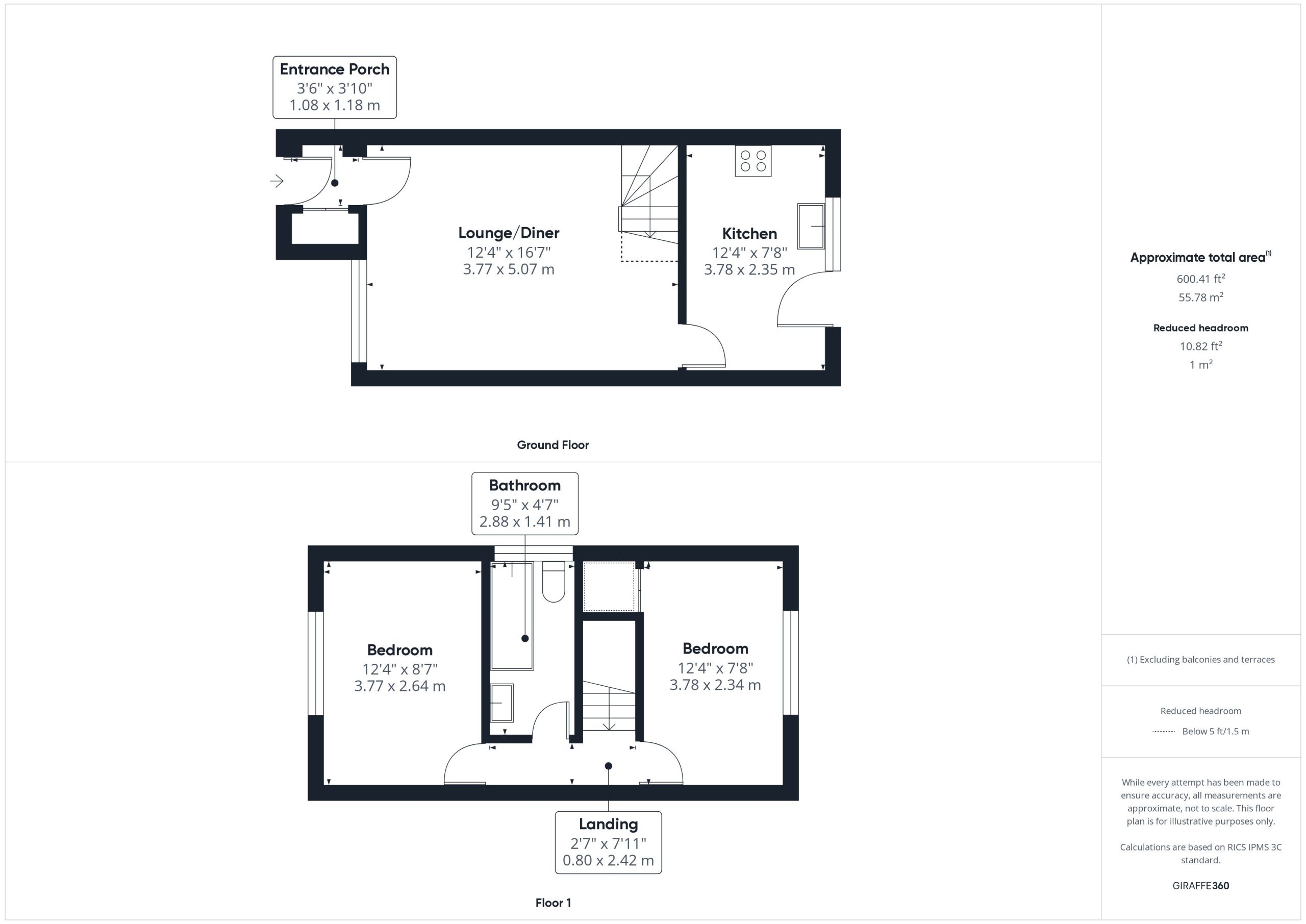
This TWO BEDROOM SEMI DETACHED HOUSE is situated just a short distance from MUDEFORD QUAY and AVON BEACH. The property benefits from AMPLE OFF ROAD PARKING and an ATTACHED GARAGE
The front door leads into the entrance porch. The lounge/diner has a window overlooking the front garden. The kitchen is set to the rear of the property with a range of base and eye level units and spaces for appliances. There is also a breakfast bar.
Stairs from the lounge/diner lead to the first floor landing. There are two double bedrooms which both have built in storage. There is a bathroom with wc, basin and bath with shower over.
The front garden is laid to lawn. The property benefits from a generous driveway which offers ample OFF ROAD PARKING. There is also an ATTACHED GARAGE with up and over door. The rear garden features sections of patio and lawn as well as some borders featuring some low maintenance evergreen shrubs.
TENURE: FREEHOLD
COUNCIL TAX BAND: C












