Warnes Lane, Burley, Ringwood, Hampshire, BH24 4EL
- Semi-Detached House
- 5
- 2
- Freehold
Key Features:
- Solar panel system
- Large Garden
- Tastefully presented
- Open plan Kitchen/Dining Room
- Dual aspect Living Room
- Vendor Suited
Description:
** VENDOR SUITED ** A TASTEFUL 5 BEDROOM SEMI-DETACHED HOUSE WITH A DUAL ASPECT SITTING ROOM, AN OPEN PLAN KITCHEN/DINING ROOM, A LARGE REAR GARDEN AND OFF STREET PARKING, SITUATED IN A HIGHLY REGARDED VILLAGE WITHIN THE NEW FOREST NATIONAL PARK.
The property has been thoughtfully updated over the past five years to include a light and airy loft conversion, new front and back doors, utility area insulation and new roofing, an insulated home office with power and internet, a new solar panel inverter , and off road parking with an electric vehicle charging point.
INTERNALLY:
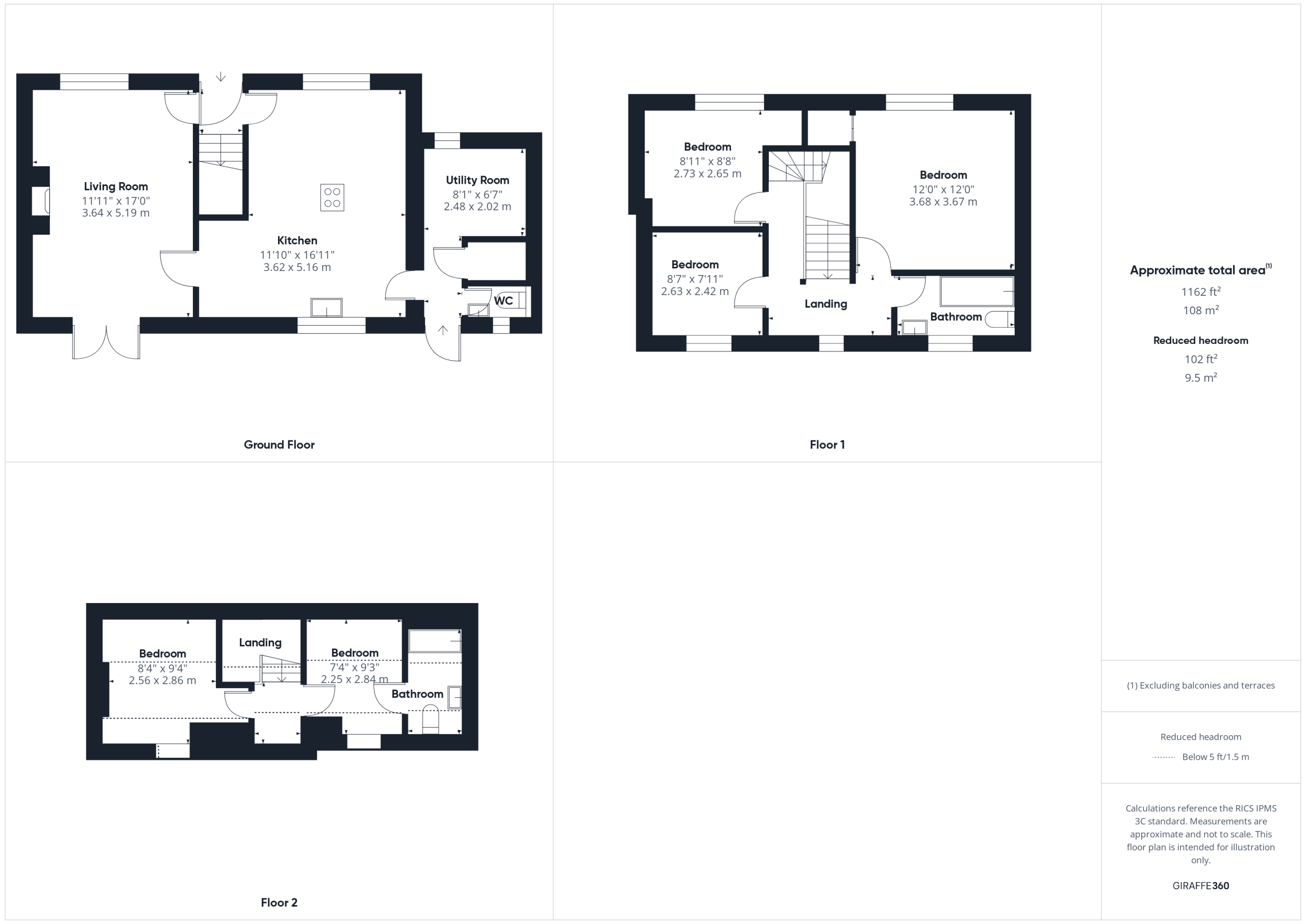
A spacious Living Room, which enjoys a dual aspect over the front and rear Gardens with double doors out to the back Garden. It features a log burner and fitted storage furniture. The Kitchen/Dining Room offers a selection of cupboard and drawer units and a wooden work surface with a centre island which extends to a breakfast bar, there is also space for a selection of appliances. The kitchen benefits from a water underfloor heating system. The system is configured to allow underfloor heating to be extended to the Living Room and Utility Room in the future. The induction hob, NEFF oven and central island with oak worktops have been installed in the last five years.
The ground floor further offers a good size Utility Room with space for washing machine/tumble dryer and small freezer as well as a dedicated Pantry and a Cloakroom.
To the first floor is a spacious Landing. Bedrooms One and Two are both good size double rooms with cupboards whilst Bedroom Three is a good size single room. A modern family Bathroom is fitted with a three piece suite and benefits from a window to the rear.
The second floor offers two further single Bedrooms both with Velux windows with fold out balconies. All Velux windows have built in blinds. Bedroom Four is complemented by a modern En Suite Bathroom with a free standing bath.
EXTERNALLY:
To the front is a gated Garden. The large rear Garden is laid mostly to lawn with a paved patio, raised borders and vegetable beds. There is a selection of sheds and a handy Home Office to the rear of the Garden which has power and WIFI. – ideal for working from home without distractions, or as a hobby space or teen den. There is also an EV charging point and two gates at the back of the garden lead to an off road parking space and additional area to park.
This is a rare opportunity to own a spacious and energy-efficient home in one of the New Forest’s most desirable villages – combining countryside living with modern convenience.
COUNCIL BAND: C
TENURE: FREEHOLD

















