Viscount Drive, Christchurch, Dorset, BH23 4JN
- Detached House
- 4
- 2
- 2
- Freehold
Key Features:
- FOUR BEDROOMS
- LINK DETACHED
- CLOSE TO QUAY & BEACH
- OFF ROAD PARKING
- GARAGE
- CUL DE SAC
Description:
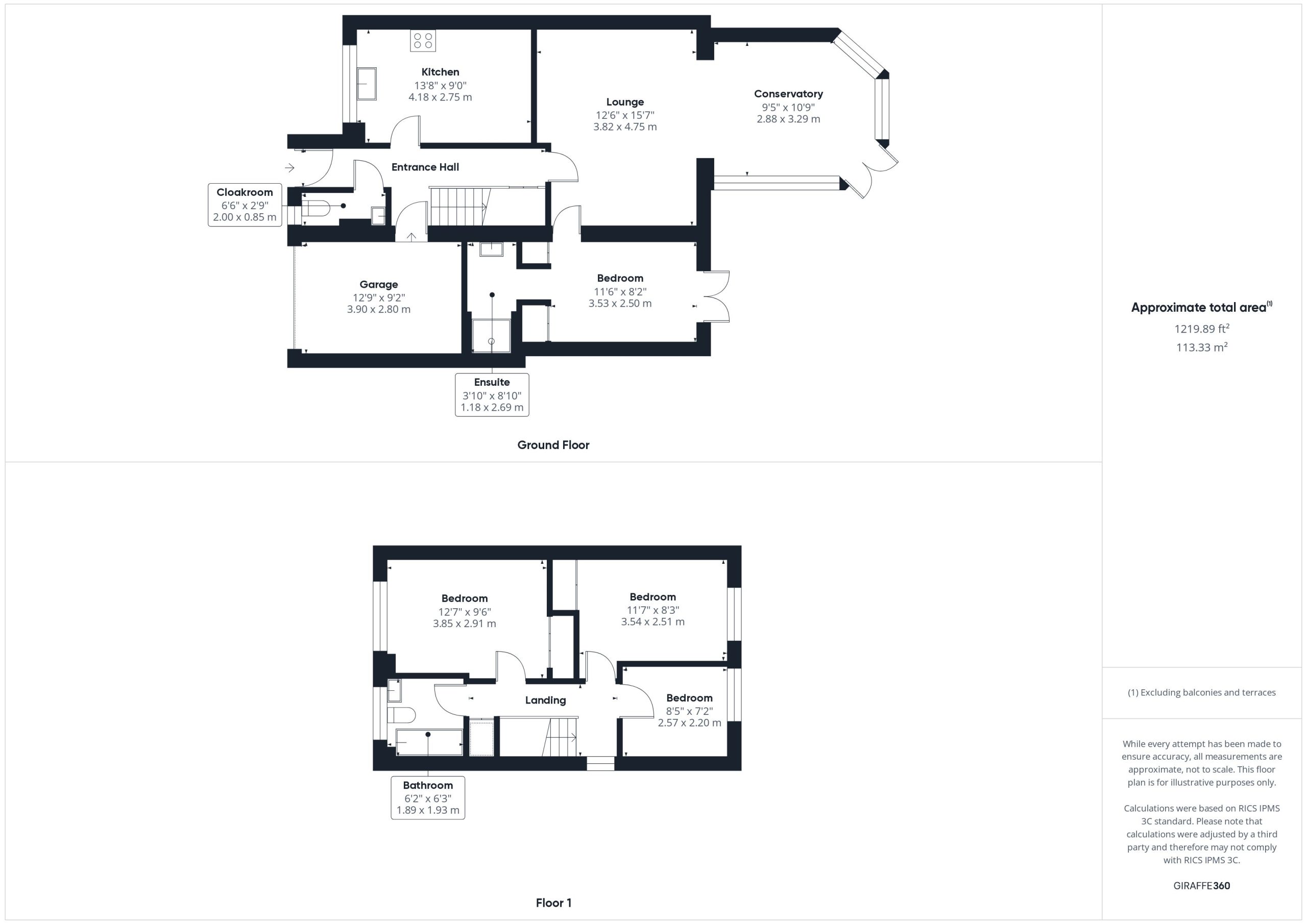
This FOUR BEDROOM LINK DETACHED HOUSE is situated just a SHORT DISTANCE FROM MUDEFORD QUAY & AVON BEACH. The property has been EXTENDED and also features OFF ROAD PARKING and a GARAGE
The front door leads into the entrance hall which has access to the ground floor cloakroom with wc and basin. There is a kitchen to the front of the property with a range of base and eye level units and some integral appliances. To the rear there is a lounge which opens up into the impressive conservatory. From the lounge a door leads through to a ground floor bedroom with access to the rear garden and an ensuite shower room.
Stairs from the entrance hall lead to the first floor landing. There are three bedrooms on the first floor. Bedrooms one and two both have built in wardrobes. There is a family bathroom with wc, basin and bath with shower over.
To the front of the property, a driveway provides OFF ROAD PARKING leading to the GARAGE with an up and over door. The rear garden enjoys a south easterly rear aspect and features sections of lawn and patio.
TENURE: FREEHOLD
COUNCIL TAX BAND: D

