The Grove, Christchurch, Dorset, BH23 2HE
- Detached Bungalow
- 4
- 2
- 3
- Freehold
Key Features:
- FOUR/FIVE BEDROOMS
- TWYNHAM CATCHMENT
- DETACHED CHALET
- ANNEXE
- PARKING & LARGE GARAGE
- IMPRESSIVE GARDEN
Description:
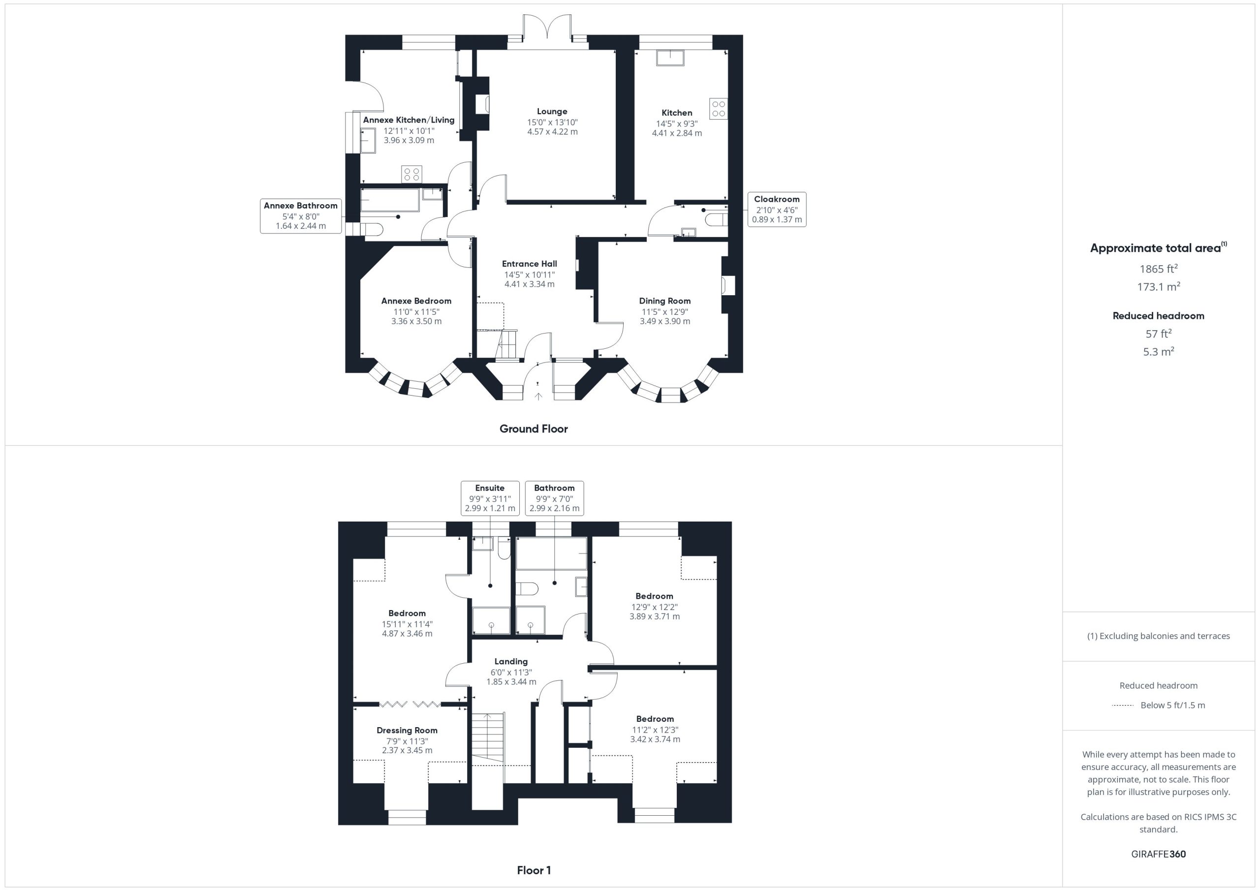
This FOUR/FIVE BEDROOM DETACHED CHALET BUNGALOW is situated in the popular area of WEST CHRISTCHURCH. This property also falls within the TWYNHAM CATCHMENT AREA and enjoys a GENEROUS REAR GARDEN, AMPLE OFF ROAD PARKING, a SUBSTANTIAL GARAGE and an ANNEXE
The front door leads into the porch and in turn the entrance hall where there is a door to the cloakroom with wc and basin. The lounge is set to the rear of the property with double doors to the rear garden. There is a separate dining room with a bay window to the front of the property which could be used as a fifth bedroom if required. The kitchen features a range of base and eye level units with some integral appliances. The ground floor accommodation also features an annexe with a living/kitchen area, bedroom and bathroom with wc, basin and bath.
Stairs from the entrance hall lead to the first floor landing which has a useful storage cupboard. Bedroom one benefits from a dressing room and an ensuite with wc, basin and shower. There are two further bedrooms on the first floor as well as a family bathroom with wc, basin, bath and separate shower unit.
To the front of the property, a large driveway provides OFF ROAD PARKING FOR SEVERAL CARS. The driveway continues down the left hand side of the property to the DETACHED GARAGE (10.7 x 5.4m). The impressive rear garden is a key feature of this home and is laid mainly to lawn with a patio area.
TENURE: FREEHOLD
COUNCIL TAX BAND: E


















