Shackleton Square, Bransgore, Christchurch, Dorset, BH23 8AJ
- Semi-Detached House
- 3
- 2
- 1
- Freehold
Key Features:
- No chain
- Modern Kitchen & Bathroom
- Excellent Parking facilities
- Attractive Rear Garden
- Impressive Garden Room
- Excellent School Catchments
Description:
AN IMPRESSIVE, TASTEFULLY PRESENTED, OLDER STYLE, THREE BEDROOM SEMI-DETACHED HOUSE FEATURING A MODERN OPEN-PLAN KITCHEN/DINING ROOM, ALONG WITH AN ATTRACTIVE REAR GARDEN AND AN IMPRESSIVE GARDEN ROOM, SET IN A MOST CHARMING VILLAGE LOCATION AROUND AN ATTRACTIVE COMMUNAL GREEN AREA.
The property is situated within strolling distance of the village centre, which offers an excellent range of day to day amenities to include a good selection of shops, a Medical Centre, three Public Houses, a Veterinary Surgery and a highly regarded Primary School, which is in turn a feeder for the most popular Ringwood and Highcliffe Comprehensives. The New Forest National Park with its pleasant walks and villages is close to hand, whilst the beautiful harbourside town of Christchurch and its neighbouring coastline is approximately 5 miles distant.
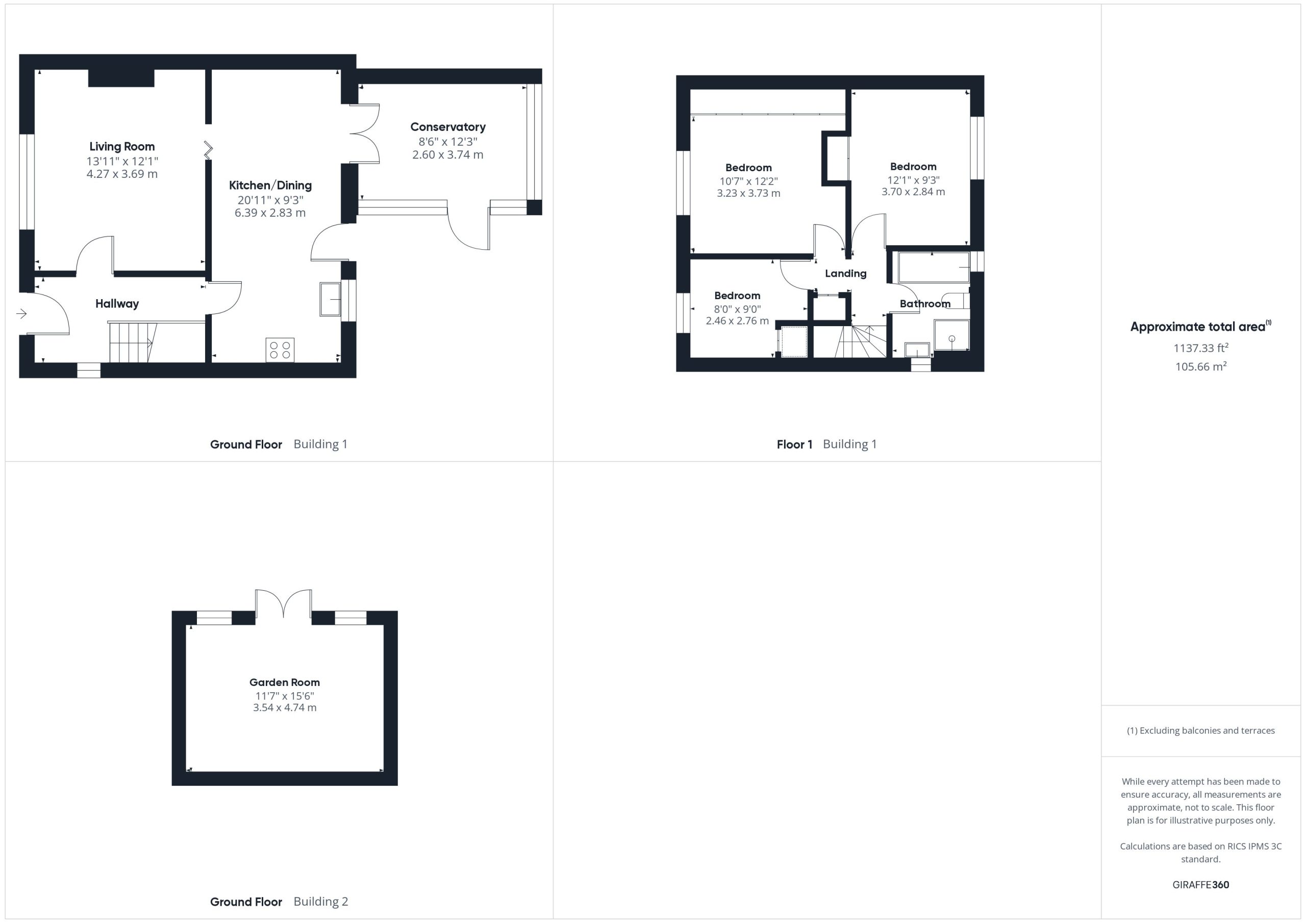
INTERNALLY:
A useful Entrance Porch opens to a spacious Entrance Hall.
The Sitting Room enjoys a pleasant outlook to the front, a chimney breast with a feature fire and adjacent fitted storage.
An open-plan Kitchen/Dining Room enjoys a pleasant outlook over the Rear Garden and flows openly to a sizeable Conservatory. The tasteful modern Kitchen offers a comprehensive selection of cupboard and drawer units, complemented by a contrasting work surface which extends to a breakfast bar.
To the first floor, a spacious light and airy Master Bedroom enjoys fitted wardrobes and an attractive outlook to the front.
Bedroom Two is a good size double room, enjoying an aspect over the Rear Garden and benefiting from a built-in wardrobe, whilst Bedroom Three, which is a good single size room, enjoys an attractive outlook to the front and a built-in cupboard.
The Family Bathroom is fitted with a modern suite incorporating both a panelled bath and a separate shower cubicle, complemented by dual aspect windows and fully tiled walls.
EXTERNALLY:
To the front of the property is a vast gravelled Driveway which extends to the side.
The attractive Rear Garden enjoys a large area of decking, an area of artificial grass and a feature seating area with a Pergola over, ideal for alfresco dining.
Furthermore, there is a large modern Garden Room, which would be ideal for a multitude of purposes, including a Home Office or Studio.
COUNCIL TAX BAND: D
TENURE: FREEHOLD
























