Rosehill Drive, Bransgore, Christchurch, Dorset, BH23 8NR
- Link Detached House
- 3
- 2
- 1
- Freehold
Key Features:
- Large South facing Garden
- Substantial Driveway & Garage
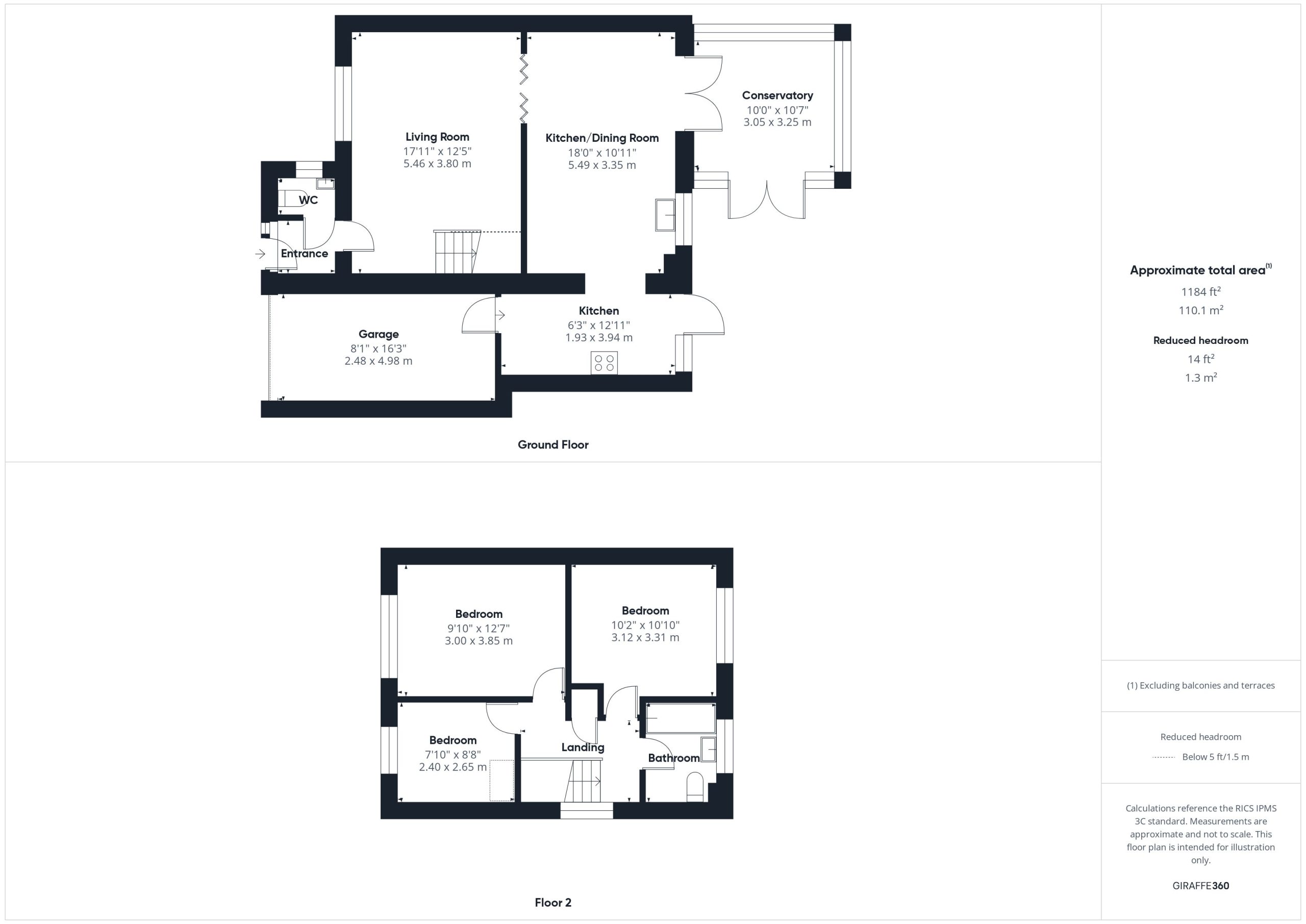
- Large Kitchen/Dining Room
- Conservatory
- Tucked away village location
- Excellent school catchments
Description:
AN ATTRACTIVE THREE BEDROOM FAMILY HOME WITH A SPACIOUS KITCHEN/DINING ROOM AND LARGE SOUTHERLY ASPECT REAR GARDEN, TUCKED AWAY IN A QUIET YET CONVENIENT VILLAGE LOCATION WITHIN EXCELLENT SCHOOL CATCHMENTS.
The property enjoys a quiet yet convenient location, only a short stroll from Bransgore village centre, offering an excellent range of amenities to include a good selection of shops, a Doctors Surgery and a number of public houses along with a most popular Primary School which is a feeder for both the highly regarded Highcliffe and Ringwood Comprehensives. The New Forest National Park is close to hand whilst the charming harbourside town of Christchurch and its neighbouring coastline is only a short drive away.
INTERNALLY:
The ground floor offers a spacious Living Room with a window to the front and folding doors to the large Kitchen/Dining Room which is fitted with a comprehensive selection of units and complemented by a breakfast bar enjoys a pleasant outlook over and access to the rear Garden and twin doors to an attractive Conservatory.
The ground floor further benefits from an Entrance Porch and a convenient Cloakroom.
There are three good size Bedrooms, Bedroom One is a spacious double room, Bedroom Two is another good size double room whilst Bedroom Three is a good size single room.
The family Bathroom enjoys a window to the rear and offers a modern matching three price suite incorporating a bath with shower fitment over.
EXTERNALLY:
To the front is a lawned Garden and a Driveway provides off road parking for a number of vehicles. There is a pathway and useful storage area to the side of the property.
The Garage is accessed via an up and over door to the front, is fitted with power and lighting and offers an integral door to the Kitchen.
A large Southerly aspect rear Garden which benefits from a good degree of seclusion enjoys a paved patio and a vast area of lawn with a Summerhouse to the far end.
COUNCIL TAX BAND: D
TENURE: FREEHOLD



















