Oak Tree Parade, Bransgore, Christchurch, Dorset, BH23 8AB
- Freehold
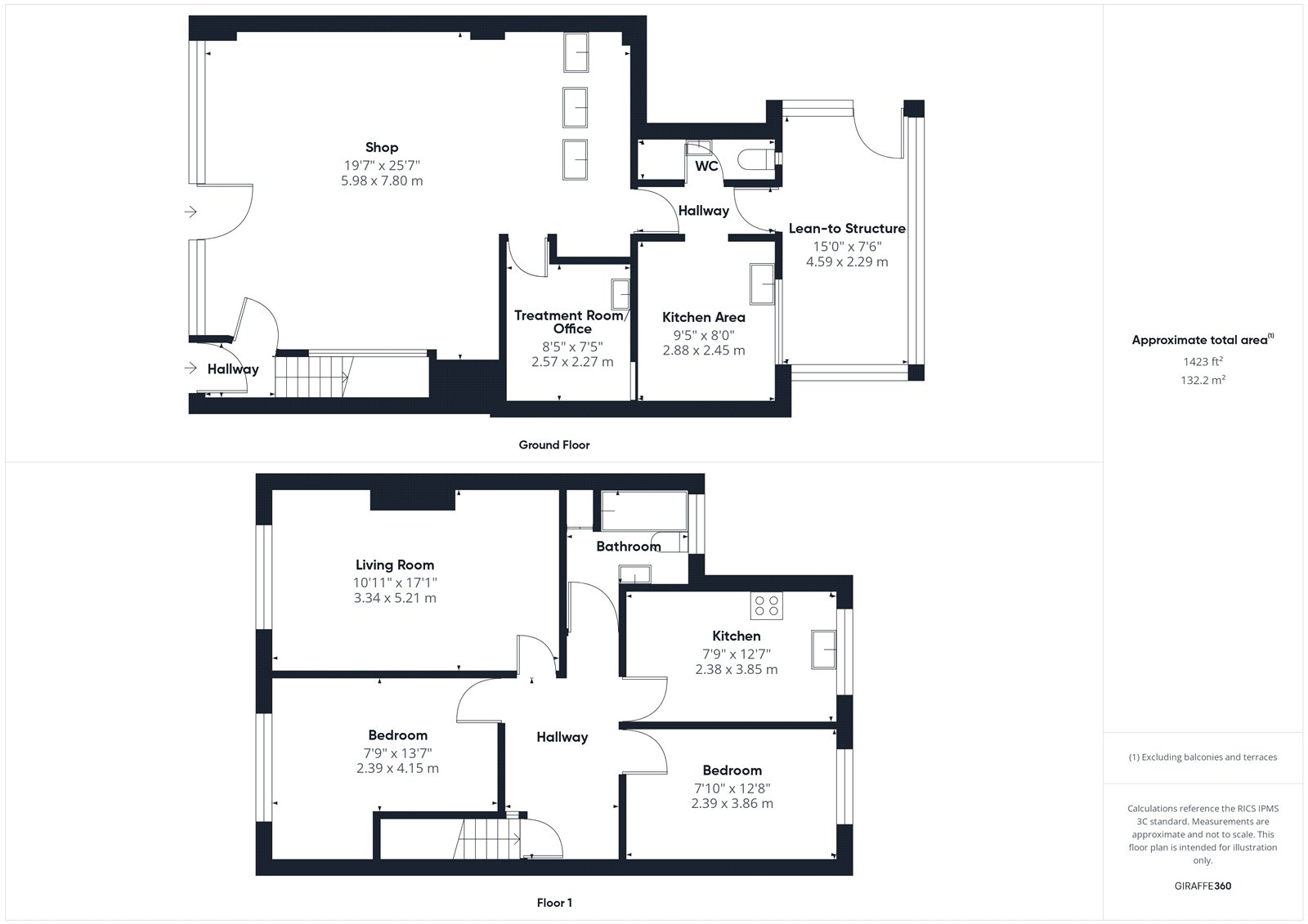
Key Features:
- Freehold investment
- Mixed use
- Prominent village location
- Retail unit + ancillary rooms
- Rear Yard/Parking
- Two Bedroom first floor flat
Description:
A fully let, mixed use, freehold investment comprising a ground floor retail unit with ancillary rooms and rear yard along with a spacious, self contained two bedroom first floor flat, situated in a busy village parade.
Currently let on a combined fully repairing lease in place until 5th March 2027, at £13,500 per annum. We understnad that tenant has a legal right entitling the option to renew at the end of the term, subject to a rent review. We advise all interested parties to seek legal clarification in this regard.
The rateable value is presently £7,900.
Commercial EPC rating: C/54
Residential EPC rating: E/51
The property is set in a small parade within the heart of Bransgore village, on the western edge of the New Forest National Park, offering a prime setting for mixed-use investment. Positioned between the coastal towns of Christchurch and Bournemouth, and the market town of Ringwood, Bransgore enjoys a strategic location with a blend of rural charm and strong regional connectivity. Excellent road connections via the nearby A35 and A31 provide swift access to Bournemouth, Southampton, and the wider South Coast. Christchurch railway station is approximately 5 miles away, offering direct services to London Waterloo.













