Hamilton Close, Mudeford, Chritstchurch
- Town House
- 4
- 2
- 2
Key Features:
- Long Term Let
- off road parking
- Unfurnished
- Council Tax Band E
- En-Suite
- 4 BED
- Balcony
- EPC RATING C
Description:
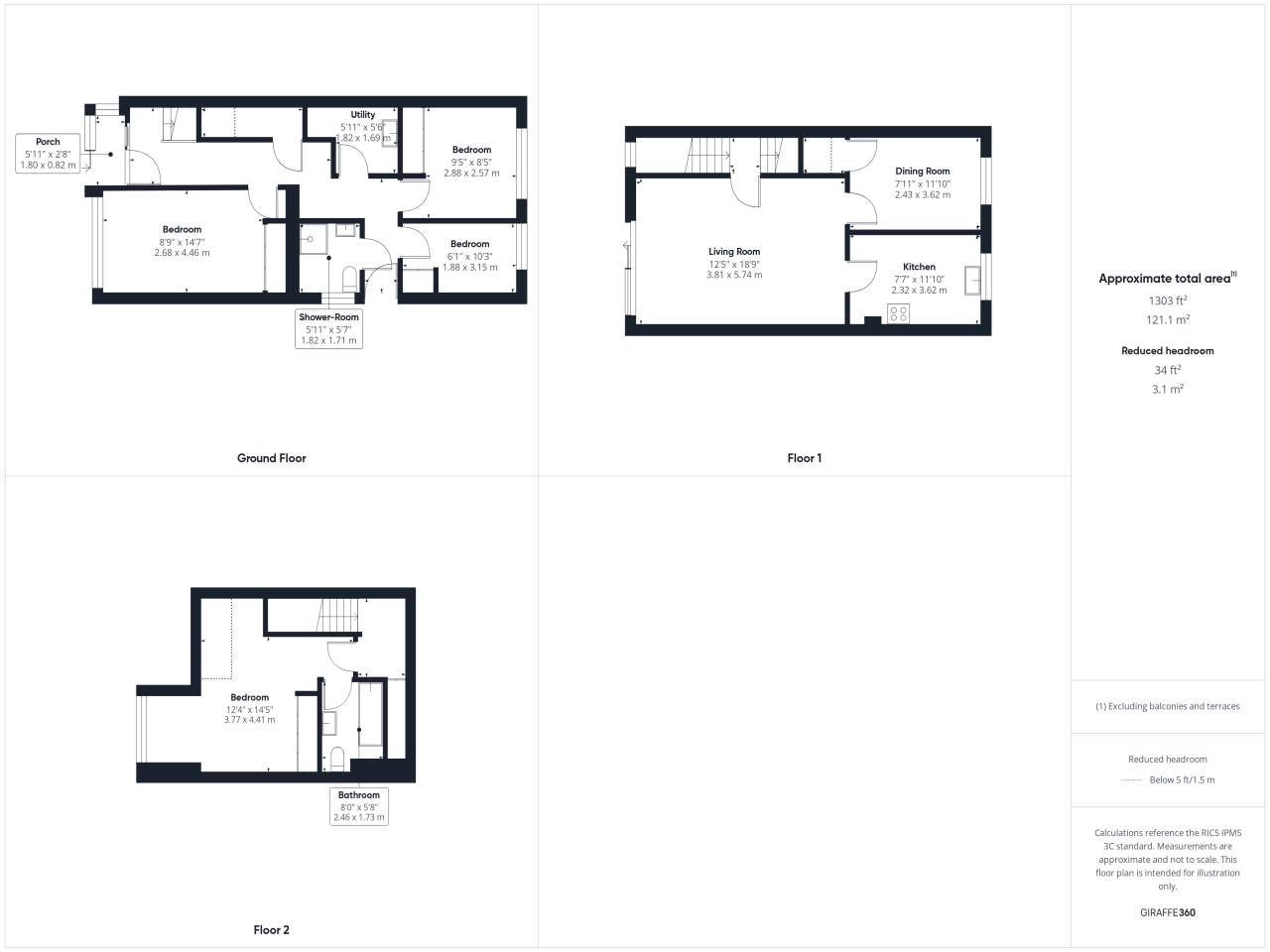
Slades are pleased to offer for rent this beautifully proportioned four-bedroom townhouse offering flexible accommodation across three floors – ideal for families, professionals, or those seeking a relaxed coastal lifestyle, situated in a tranquil cul-de-sac close to Mudeford Quay, Stanpit Marsh N...
The ground floor welcomes you with a bright entrance hall and ample storage, leading to three generously sized bedrooms, including two doubles and a versatile third – ideal as a guest room or home office. A contemporary shower room with WC and a separate utility room complete the practical and well-planned ground floor layout.
Upstairs, the first floor is filled with natural light and provides the perfect space for entertaining or relaxing. A spacious living room opens onto a sunny private balcony. The separate dining room and well-equipped kitchen to the rear make this level ideal for family living or hosting.
Occupying the entire top floor, the principal suite is an impressive retreat, offering a spacious double bedroom, en-suite bathroom, built-in wardrobes, and eaves storage.
Externally, the home benefits from driveway parking, a car port suitable for multiple vehicles or boat storage, and a low-maintenance rear garden with patio, lawn, and raised decking area.
Set in a peaceful and sought-after location, Hamilton Close is just over a mile from Christchurch Town Centre with its historic Priory, vibrant high street, and excellent transport links. AVAILABLE NOW, this rare opportunity is ideal as a long-term let, family home, or coastal getaway.
EPC RATING: C
COUNCIL TAX BAND: E
HOLDING DEPOSIT: £403.84
DEPOSIT: £2019.23
AFFORDABILITY: Prospective tenants must show a combined annual income of £52,500 and have a clear credit history.
















