Hamilton Close, Christchurch, Dorset, BH23 3LS
- House
- 4
- 2
- 2
- Freehold
Key Features:
- NO CHAIN
- WELL PRESENTED THROUGHOUT
- COASTAL LOCATION
- FLEXIBLE LIVING
- PARKING & CARPORT
- BALCONY & GARDEN
Description:
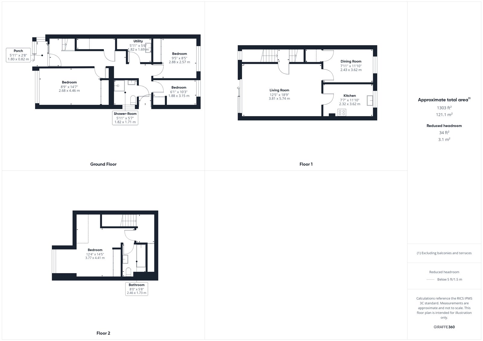
A DECEPTIVELY SPACIOUS FOUR BEDROOM HOME offers FLEXIBLE ACCOMMODATION set across three floors, tucked away in a QUIET CUL-DE-SAC location close to MUDEFORD QUAY and STANPIT NATURE RESERVE. NO CHAIN.
Step through the front door into a welcoming porch and entrance hall, where a handy under-stairs cupboard provides plenty of storage for beach gear or outdoor essentials. On the ground floor, you’ll find three well-proportioned bedrooms – two generous doubles and a versatile third room. A stylish shower room with WC and a separate utility room add to this home’s everyday practicality.
Upstairs, the first floor is flooded with natural light. The spacious living room is a wonderful place to relax or entertain, with a sliding patio door opening onto a sunny, generous balcony - perfect for morning coffee or evening drinks. To the rear, a separate dining room and well-fitted kitchen provide excellent space for family meals or dinner parties.
The top floor is dedicated to the impressive principal suite, complete with an en-suite bathroom, built-in wardrobes, and a dressing area. Additional storage is thoughtfully provided via a landing cupboard and extensive eaves space.
Outside, the property offers driveway parking and a car port, ideal for multiple vehicles or even boat storage. The private rear garden is a true retreat: a patio area for easy entertaining, a lawn for play or relaxation, and a raised decking area perfect for alfresco dining. A large shed provides ample space for bikes, kayaks or paddle boards—a must for this superb coastal location.
Set in a peaceful residential cul-de-sac, Hamilton Close is perfectly placed for exploring Christchurch Harbour, Stanpit Marsh Nature Reserve, and a network of beautiful harbour walks. This freehold home offers a rare opportunity to enjoy the ultimate coastal lifestyle - whether as a permanent residence or a dream holiday escape.
Tenure: Freehold
Council Tax Band: E

















