Danesbury Avenue, Tuckton, Bournemouth, Dorset, BH6 3AG
- Detached House
- 3
- 2
- 1
- Freehold
Key Features:
- Superb location close to Tuckton
- In need of cosmetic updating
- Three bedrooms
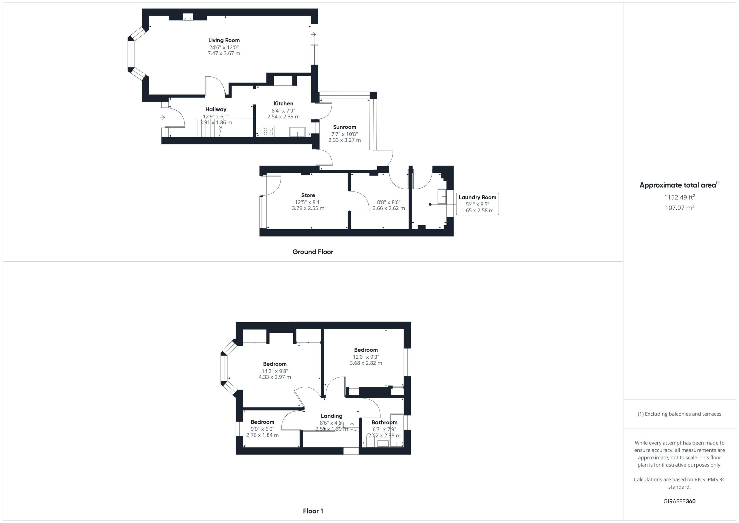
- 24' Lounge/Diner
- Landscaped Westerly facing garden
- Off road parking
- No onward chain
Description:
SOLD PE-MARKET! Now in need of cosmetic updating, this three bedroom detached house offers a great opportunity to personalise to taste and is set in a popular location just a few minutes’ walk to Tuckton High Street.
Although the house has been well looked after over the years, it now offers a great opportunity to modernise to taste, remodel and extend ( subject to the necessary permissions being obtained )
Along with its three bedrooms and spacious family bathroom, there is also a generous lounge/diner, separate kitchen and a wonderful Westerly facing rear garden along with a double garage/workshop and ample off road parking.
Upon entering the property via a partly glazed UPVC front door, you are welcomed by a good sized entrance hallway, with doors leading to the spacious lounge/diner, separate kitchen and stairs leading to the first floor accommodation.
Offering a lovely dual aspect, with a large UPVC bay window to the front aspect and sliding French doors to the rear aspect, the lounge/diner is a great sized room measuring 24' in length. There is ample room for both living and dining room furniture and Sliding French doors offer access to the beautifully landscaped rear garden.
The kitchen can be found adjacent to the lounge/diner and has been fitted with eye level and base units set above and below the work surfaces. There is a serving hatch to the dining room and a glazed door offers access to the fully glazed sunroom where there are further doors both to the front of the house and the rear garden.
Stairs lead from the entrance hallway to the first floor accommodation where two large double bedrooms, a smaller third bedroom and a good sized bathroom can be found.
Externally, to the front there is off road parking for at least two cars whilst the Westerly facing rear garden has been well landscaped with both grass and patio areas and is a generous size. There is a glazed greenhouse to the rear of the garden and a large garage/workshop along with a separate utility room adjoining.
A superb opportunity to personalise to taste, an internal inspection is an absolute must!















