Colbourne Close, Bransgore, Christchurch, Dorset, BH23 8BW
- Terraced House
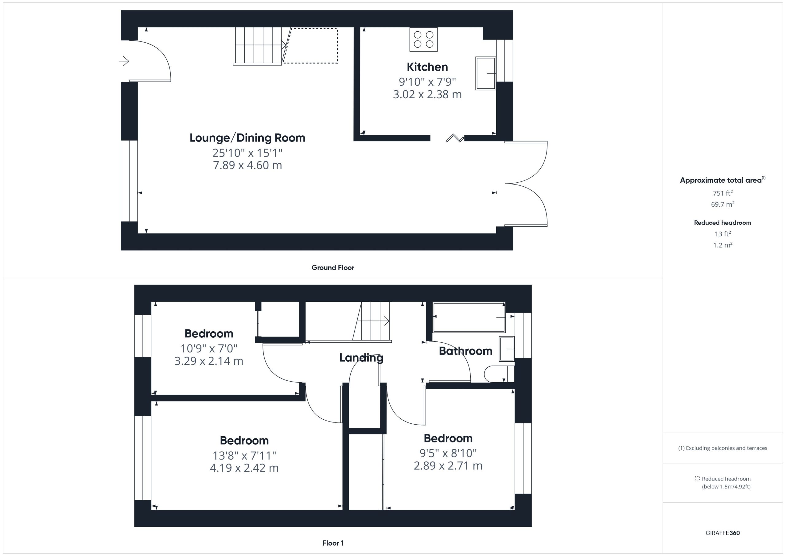
- 3
- 1
- 1
- Freehold
Key Features:
- Brilliant location
- Surprisingly spacious
- Immaculately presented
- Three double Bedrooms
- Attractive Garden
- Garage in block
Description:
AN IMMACULATELY PRESENTED, 3 DOUBLE BEDROOM, LOW MAINTENANCE HOME WITH AN ATTRACTIVE SOUTH WESTERLY ASPECT REAR GARDEN AND GARAGE, ENVIABLY TUCKED AWAY IN A QUIET VILLAGE LOCATION WITHIN EXCELLENT SCHOOL CATCHMENTS
This beautiful home occupies a quiet and private position, set back from the road along a footpath in a quiet cul-de-sac adjacent to the village recreation ground and within a short stroll of the village centre with its excellent range of amenities to include a good range of day to day shops, a Medical Centre, three Public Houses and a most popular Primary School which is in turn a feeder school for both the highly regarded Ringwood and Highcliffe Comprehensives. The New Forest National Park with its pleasant country walks and villages is close to hand, whilst the beautiful harbourside town of Christchurch is approximately 5 miles distant.
INTERNALLY:
A spacious Lounge/Dining Room enjoys a dual aspect with a pleasant outlook to the front and twin doors opening to the rear Garden, along with a feature fireplace and laminate flooring.
The Kitchen which enjoys a pleasant outlook over the Garden offers a selection of cupboard and drawer units, there is a freestanding cooker and space for a selection of appliances.
To the first floor are three double Bedrooms, Bedrooms 1 is a particularly spacious room enjoying a pleasant outlook to the front, Bedroom 2 is a good size fitted wardrobes whilst Bedroom 3 is a smaller size double room with a built in cupboard.
The tiled family Bathroom benefits from an obscured window to the rear and is fitted with a matching suite incorporating a bath with shower fitment over.
EXTERNALLY:
The front Garden is laid to lawn with attractive borders.
The beautiful rear Garden is delightfully stocked with a fine selection of shrubs and flowers and offers various attractive seating areas along with a pond.
Immediately adjacent to the garden and accessed via a gated path, is a Garage in a block which benefits from an electrical connection..
COUNCIL TAX BAND: C
TENURE: FREEHOLD


















