Clive Road, Christchurch, Dorset, BH23 4NX
- Semi-Detached Bungalow
- 4
- 1
- 2
- Freehold
Key Features:
- Extensively renovated and extended bungalow in a quiet, residential location in Highcliffe
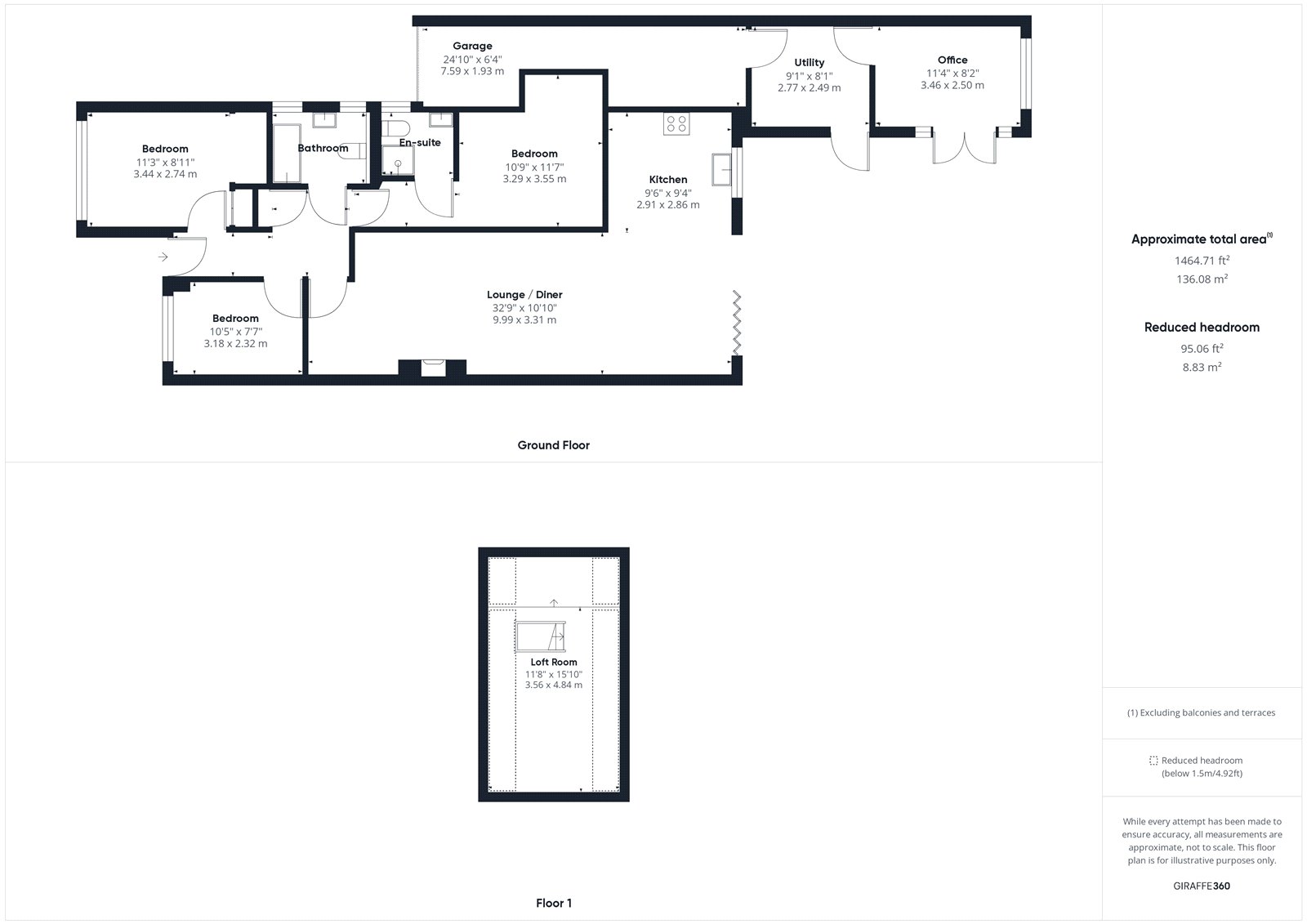
- Understated front aspect with deceptively spacious accommodation totalling nearly 1500 sq. ft. with annexe potential
- Impressive vaulted ceiling living space with bifold doors into the garden
- Good size, well established rear garden, with southerly aspect and high degree of privacy, with a raised seating area at one end
- Separate utility room with door into garage/store
- 4th bedroom/ Home Office, and a fully floored and decorated loft room with Velux windows
- Off road parking for several vehicles
- Short walk to the local comprehensive school and the train station
Description:
An impressive, extensively renovated bungalow with a private, southerly facing rear garden. Accommodation includes a separate utility room, a 4th bedroom/office and a loft room with two Velux windows.
Wood floor continues through the majority of the ground floor, including the master bedroom which has a large sky light and a recessed wardrobe area. It has s stylish an en-suite comprising a shower cubicle, inset WC, wash hand basin in vanity unit, has tiled floor, a heated towel rail and an obscured glazed window. There are two further bedrooms at the front of the bungalow.
The equally stylish family bathroom comprises a bather with shower over, wash hand basin and WC. Again, with tiled floor, a heated towel rail and two obscured glazed windows.
The open plan living/dining/kitchen is particularly impressive, with a wood burner, and vaulted ceiling with full height glazing in the gable end, and with bifold doors leading into the garden.
In the kitchen is a selection of eye and base level units with cupboards and drawers. Space for an American style fridge freezer, integrated oven and dishwasher, inset sink overlooking the garden. The separate utility room provides space for the washing machine and tumble dryer and has further storages and work tops. A door from the utility leads into the garage store.
There is a very useful multi purpose room that can be used in a variety of ways, it could act as a 4th bedroom if required, or a lovely garden room during the warmer months as it has doors into the garden. If required, between this room and the utility room, an annexe could be created, and it could have independence access by incorporating the garage/store.
Outside
Large frontage providing off road parking for several vehicles.
Landscaped rear garden offering total privacy and a southerly aspect. On the immediate rear is a large patio with a pergola, making for lovely place to sit and enjoy the outlook down the garden. A path leads down the garden through an area on and established borders.
At the rear is a further raised patio, again with a pergola and with a pleasant outlook towards the back of the bungalow. From the rear you can appreciate the impressive design and amount of work that has gone into the property. There is a large wood panelled shed with double doors providing storage.
Council tax band C.


























