Cambridge Gardens, Christchurch, Dorset, BH23 2TL
- Semi-Detached House
- 2
- 2
- 1
- Freehold
Key Features:
- TWO BEDROOMS
- SEMI DETACHED
- OFF ROAD PARKING
- SW FACING REAR
- TWYNHAM CATCHMENT
- EXTENDED
Description:
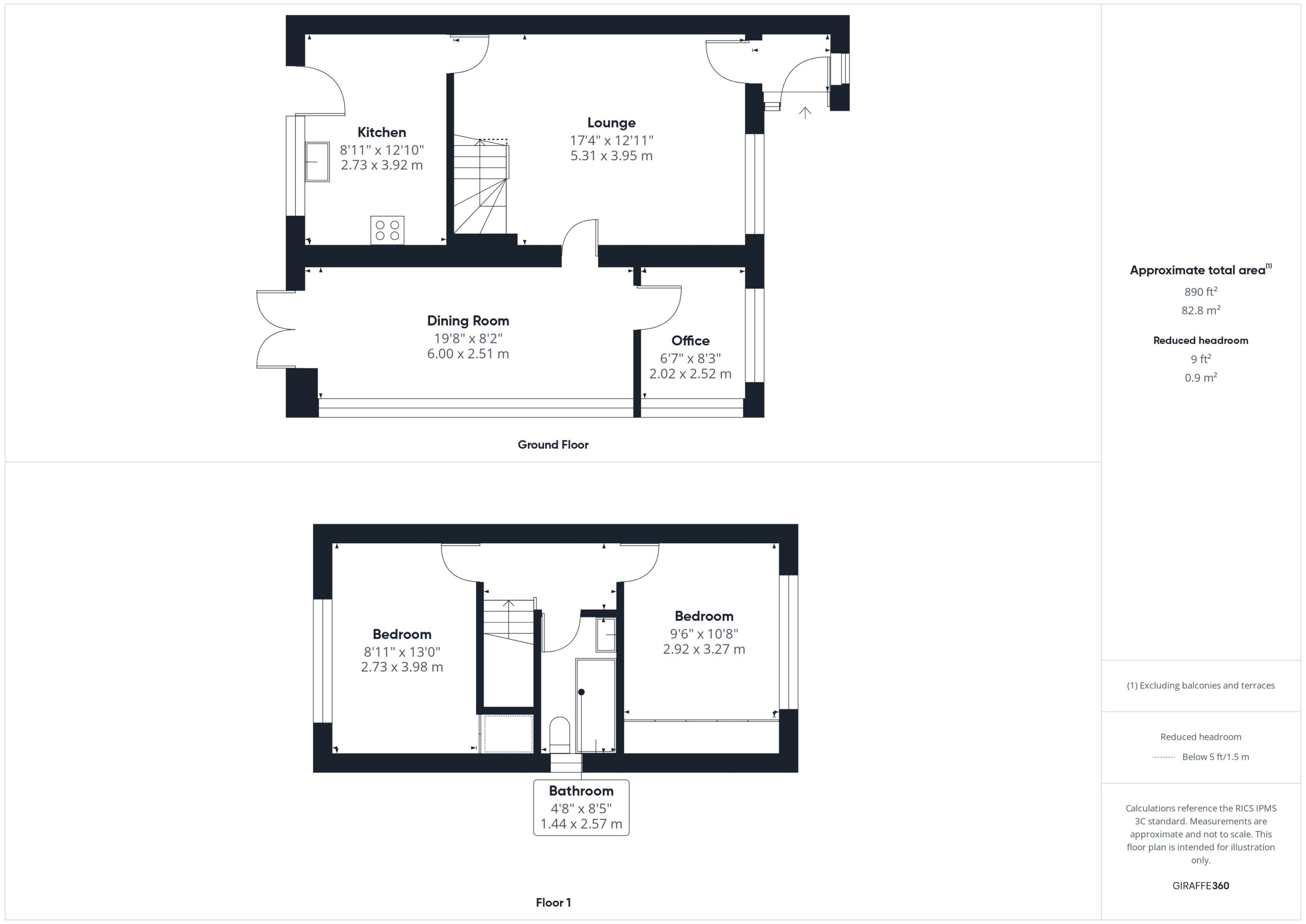
This TWO BEDROOM SEMI DETACHED HOUSE is situated on a CUL DE SAC within the TWYNHAM SCHOOL CATCHMENT AREA. The property has been EXTENDED and benefits from OFF ROAD PARKING and a SOUTH WESTERLY FACING REAR GARDEN
The front door leads into the porch. The lounge is set to the front of the property. This house has been extended to the left hand side to create another reception space; currently used as dining room and an office. The kitchen features a range of base and eye level units with spaces for appliances.
Stairs from the lounge lead to the first floor landing. There are two bedrooms which both have built in storage and a bathroom with wc, basin and bath with shower over.
To the front of the property a driveway provides OFF ROAD PARKING. The rear garden enjoys a south westerly aspect.
TENURE: FREEHOLD
COUNCIL TAX BAND: C














