Bridge Street, Christchurch, Dorset, BH23 1EB
- Detached House
- 2
- 2
- 2
- Freehold
Key Features:
- Vendor suited
- Potential to purchase fully furnished
- Stunning Waterside home in Christchurch Town Centre
- Highly sought-after location
- 2 parking spaces
- Incredible river views
Description:
**SUITED & MOTIVATED VENDOR** A rare opportunity to purchase a detached Waterside home in Christchurch Town centre, with a mooring. This well-presented home would make a fantastic 'lock up and leave' and benefits from 2 parking spaces. Potential to purchase fully furnished.
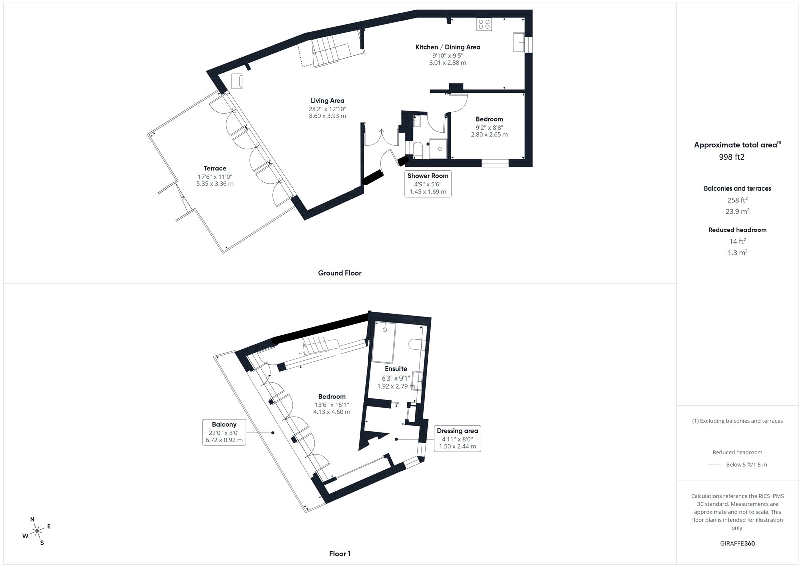
The ground floor centres around a bright open-plan living and dining space, with doors opening onto a westerly-facing balcony and terrace. This orientation allows for plenty of natural light throughout the afternoon and evening, while also providing open views across the river. The terrace leads directly to a private mooring—an increasingly sought-after feature, ideal for those looking to enjoy boating and life on the water. It’s to be noted only a small boat would fit under the bridge. Kayaks and paddleboards can be stored under the balcony terrace. The terrace ensures low-maintenance living.
The kitchen is positioned to the front of the property and is well arranged for everyday use offering and array of base and eye level storage, while the ground floor also includes a guest bedroom, a well-appointed shower room, and an entrance porch.
Upstairs, the principal suite offers a well-proportioned bedroom, dressing area, and a modern en-suite shower room. A private balcony extends from the bedroom, providing elevated views across the river and a quiet space to sit and enjoy the surroundings.
Being located in the town centre, the property is within easy reach of Christchurch’s range of shops, cafés, and restaurants, as well as the quay and riverside walks—making it easy to balance day-to-day convenience with a waterside lifestyle.
The boiler was new from 2022 and the property is in outstanding order.
Externally there are two parking spaces on the front, and a beautiful olive tree ensuring a Mediterranean feel. A side gate is situated on the left leading to the rear terrace.
Should a purchaser be interested, the vendor would also sell the home fully furnished, offering a true turnkey opportunity.
Tenure: Freehold
Council Tax Band: E
EPC Rating: C





















