Avon Buildings, Christchurch, Dorset, BH23 1QS
- Terraced House
- 2
- 2
- 1
- Freehold
Key Features:
- TOWN CENTRE LOCATION
- NO CHAIN
- WELL PRESENTED
- LOG BURNER
- GENEROUS SOUTH FACING GARDEN
- CHARACTERFUL FEATURES
Description:
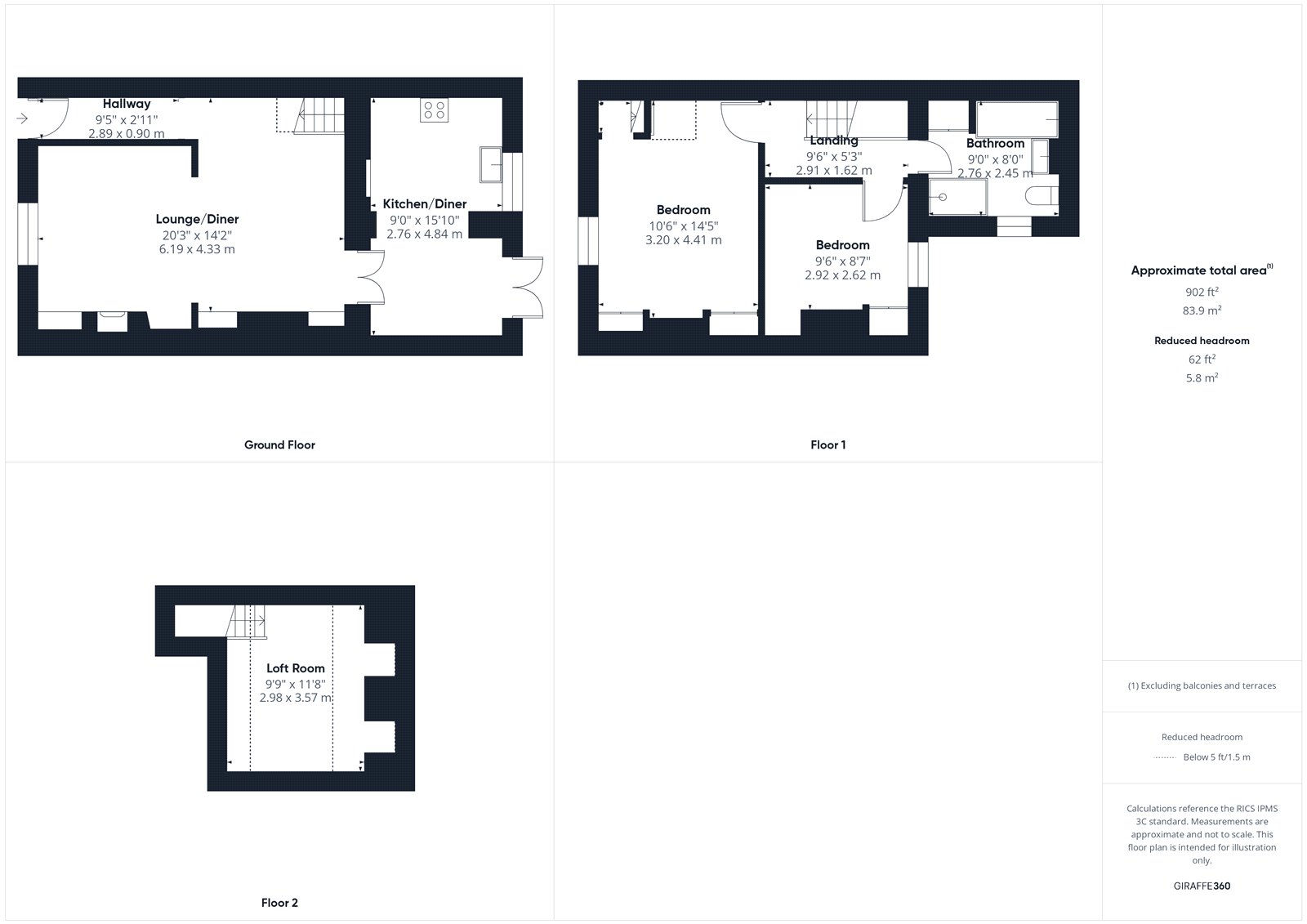
This beautifully presented three-storey period property offers a perfect blend of character charm and modern comfort. Located just a short stroll from the High Street, Priory, and Christchurch Quay.
The front door leads into the Entrance Hall.
A Spacious Lounge/Diner measuring 20’3” x 14’2” (6.19m x 4.33m) offers ample room for relaxing and entertaining. A log burner provides a real centrepiece.
Double door's lead to a stylish Kitchen/Diner with a range of eye and base level units as well as space for appliances. French doors open to the garden.
Upstairs there are two generously sized Bedrooms. Alongside a well-appointed Family Bathroom.
From the main bedroom, stairs lead to a versatile Loft Room (9’9” x 11’8” / 2.98m x 3.57m), perfect as a home office, studio or guest room.
Outside the SOUTH FACING garden is a generous size. There is an area of patio to the immediate rear with the rest predominantly laid to lawn.
Tenure: Freehold
Council Tax Band: D

















