Ashley Road, Bournemouth, Dorset, BH1 4NQ
- Maisonette
- 3
- 1
- 1
- Freehold
Description:
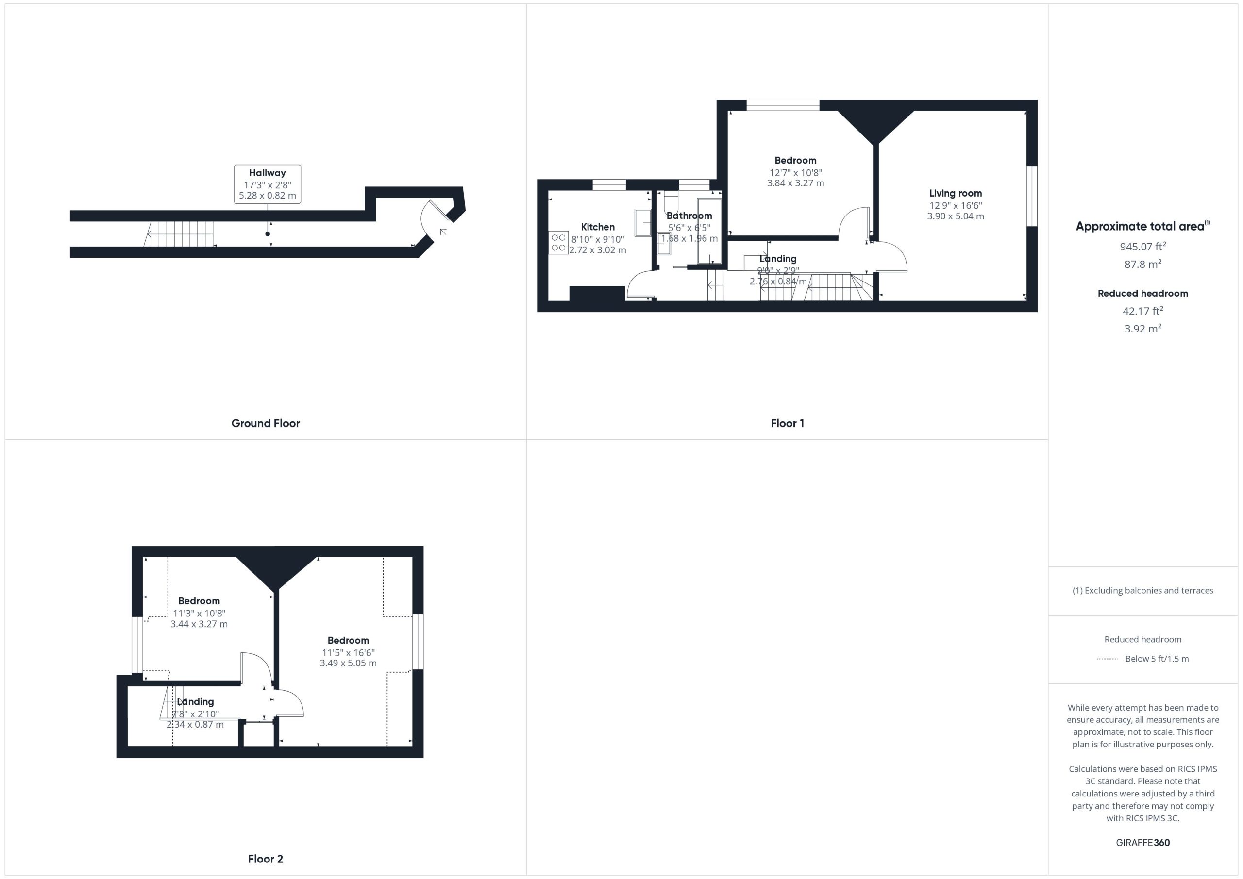
SOLD PRE-MARKET! This spacious 3 bedroom first and second floor maisonette offers a lovely view over Kings Park Playing fields and offers almost 1000 square foot of modernised accommodation. Also benefitting from 2 parking spaces and the freehold to the building, if presents a great opportunity!
The apartment has recently undergone a refurbishment programme to include a new kitchen and bathroom, new carpets and general redecoration throughout.
The apartment offers three double bedrooms, served by a modern bathroom, a large living room and a modernised kitchen. Additional benefits include UPVC double glazing, modern electric heating, two allocated off road parking spaces, a private entrance and the freehold to the building.
A great first time buy or buy to let investment, an internal inspection comes highly recommended!
Access into the apartment is via a private partly glazed UPVC front entrance door which leads into the ground floor entrance hall. From here, stairs lead to the split level landing where the modernised kitchen, bathroom, living room and a double bedroom can be found.
A further set of stairs lead to the second floor accommodation, where two further double bedrooms can be found.
Externally, the apartment benefits from two off road parking spaces set to the rear of the building.
TENURE: The apartment benefits from the freehold to the building. A new 999 year lease will be granted on completion. There is no ground rent and maintenance is split 50/50 on an as and when basis.
Please note: Some of the pictures depicted within our details have been AI Furnished and are to give an impression only.











